PICCIOTTO

CASA 55

HABITACIONAL

    Ciudad de México

    2014 - 2018

 

Bosque de Olmos es una remodelación y ampliación que se realizó a una residencia ubicada en Bosques de las Lomas. Se encuentra en un terreno irregular con un desnivel muy pronunciado hacia la calle posterior, que implica casi 25 metros de altura, el cual le provee de una gran vista hacia el contexto urbano.

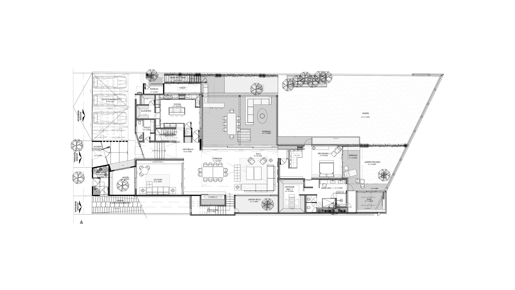
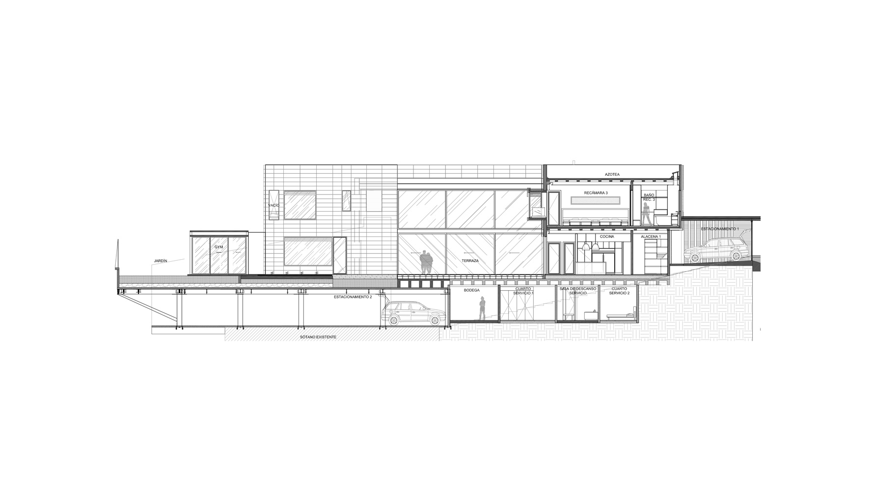
El volumen con forma de “L” se compone de tres niveles: dos plantas y un sótano. Su diseño se realizó con un estilo contemporáneo, elegante y sencillo, que aprovecha al máximo las vistas del terreno. Los materiales que fueron utilizados son: acero, tabique cerámico, granito, madera natural, concreto aparente y cristales de última generación. Se realizaron una serie de estudios, considerando las características térmicas y acústicas del lugar; esto con el fin de obtener el mayor beneficio sobre su orientación y lograr aprovechar la iluminación y ventilación naturalmente.

El exterior es de un acabado cerámico ultra ligero, que proporciona una fachada ventilada para mejorar las condiciones térmicas al interior. Posee también las últimas tecnologías sustentables, las cuales incluyen páneles fotovoltaicos, calentadores solares, planta de tratamiento de aguas e iluminación con equipos de bajo consumo, entre otros elementos.

La sala y el comedor gozan de una doble altura. Aquí existe un gran ventanal de seis metros de alto, el cual abre completamente el espacio hacia la terraza por medio de cancelería corrediza que queda oculta dentro del muro, rematando visualmente con un gran cuerpo de vegetación natural. La terraza tiene una cubierta traslúcida retráctil para permitir flexibilidad en su uso.

A estas áreas públicas se suman el estudio, la terraza y el jardín. Son tres recámaras las que conviven como áreas privadas, al igual que el gimnasio, sala de televisión y biblioteca. La recámara principal se encuentra en planta baja, la cual se complementa con un jardín privado y vista hacia el desnivel natural. El acceso a las recámaras superiores es por medio de dos puentes que rodean la doble altura y que permiten tener una vista de la zona principal en todo momento.

Otra área de la casa, es la de servicios; cuenta con dos habitaciones, cuarto de lavado, bodegas, cocina y estancia de descanso. El sótano se conserva en su mayoría como estaba, únicamente se hicieron algunos ajustes para optimizar los espacios de acuerdo a su uso y se aprovechó para crear una pequeña sala de cine de uso privado, así como un salón de juegos.

 

Ubicación:

Año:

Diseño:

Equipo de proyecto:

 

 

 

 

 

Interiorismo:

Carpintería:

Fachadas:

 

Cancelería:

 

Paisaje:

Instalaciones:

Instalación eléctrica:

Iluminación:

Diseño acústico:

Performance bioclimáticos):

Construcción:

Cálculo estructural:

Renders:

Cocina:

Pisos de madera:

 

Acabados pétreos en pisos y recubrimientos en muros interiores:

Cortinas y persianas:

Área de terreno:

Área de construcción:

Bosque de las Lomas, CDMX

2014 - 2018

Picciotto Arquitectos

José Picciotto, Enrique Anaya, Jessica Ortiz, Ana Lilia Hernández, Dante Laureano, Nadia Ham y Julio Mejía.

Picciotto Arquitectos

Breuer

Hunter Douglas y Katorce Espacios

Cortizo por Venster, Cristacurva

Ambiente Arquitectos

Bio-e

H2E

Luz + Forma

Saad Acústica

 

Eric Hernández

Xooc

Iván Santa Cruz

GZH Studio y Nadia Ham

Olimpic

Mafi por FORTE, deck MOSO de Hunter Douglas

 

 

Tenerife

HOUZZ

892 m2

790 m2